一、工程概况
1)本工程位于广州市荔湾区流花展馆。
2)结构体系为框架结构。图示区域均由原办公用房改为餐饮用房,其中重餐饮厨房位置的楼面附加恒载增加了4KN/m2 ,活荷载由原设计2KN/m2增至4KN/m2 ,由此对原结构进行改造加固设计。

二、改造加固计算分析
计算分析采用YJK加固设计模块

计算分析模型
三、因地制宜优选加固方案
1、一号餐厅加固设计方案
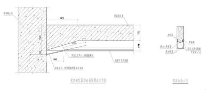
(1)由于该餐厅下面二层店铺已经装修并投入使用,因此选择在三层楼面进行改造加固,梁加固方法主要采用向上增加截面法,抬高梁面400mm。
(2)在原楼板顶新浇筑100mm厚混凝土楼板,由新板承担楼面全部荷载,并在新楼板与原楼板之间填充50mm大变形弹性材料,避免原楼板受新增楼面荷载的影响。
(3)考虑厨房使用功能要求,需在地面设置纵横相连的排水沟,因此改造加固时在相应位置的新增混凝土梁中部预埋矩形套管。

2、二号餐厅加固设计方案
(1)该餐厅楼面梁采用常规加固设计方法,梁底采用增大截面加固法,在梁底增加450mm。梁顶采用粘贴钢板加固法,在梁顶支座位置粘2道-100x4钢板。
(2)楼板采用粘贴钢板加固法,在板底粘-100X3@300钢板,板顶支座处粘-100X4@300钢板。

加固做法详图






用户评价(0)